make appointment

Register Your Interest Today

Helping you find the home of your dreams. Creating real value in home and places.
About the Home

The Madison – 2632 sf. – 2 Story

The Madison is an elegant and stately two-story single family home. This is an energy efficient, 4 bedroom, 2 1/2 bathroom, semi-custom built home with brick front elevation on a spectacular one acre lot. Exceptional standard features include but are not limited to, red oak hardwood floors, an oak staircase, first floor 9 foot ceilings, an oversized two car garage, and a full basement. Beautiful granite kitchen countertops add a collaborative expression of exquisite style.

DEVELOPER: Robert C. Peoples, Inc
Area: 2632 sf
Bedroom: 4
Bathroom: 2 1⁄2
A smart move

The Clearbrooke Payment Plan

Lorem ipsum dolor sit amet, consectetur adipisilit, sed do eiusmod tempor incididunt ut labore et dolore magna ali enim ad minim veniam Lorem ipsum dolor sit amet, consectetur adipisilit, sed do eiusmod tempor incididunt ut labore et dolore magna ali enim ad minim veniam

1ST Instalment

Lorem ipsum dolor sit amet, consectetur adipisilit,

3RD Instalment

Lorem ipsum dolor sit amet, consectetur adipisilit,

5TH Instalment

Lorem ipsum dolor sit amet, consectetur adipisilit,

2ND Instalment

Lorem ipsum dolor sit amet, consectetur adipisilit,

4TH Instalment

Lorem ipsum dolor sit amet, consectetur adipisilit,

6TH Instalment

Lorem ipsum dolor sit amet, consectetur adipisilit,

choose Home

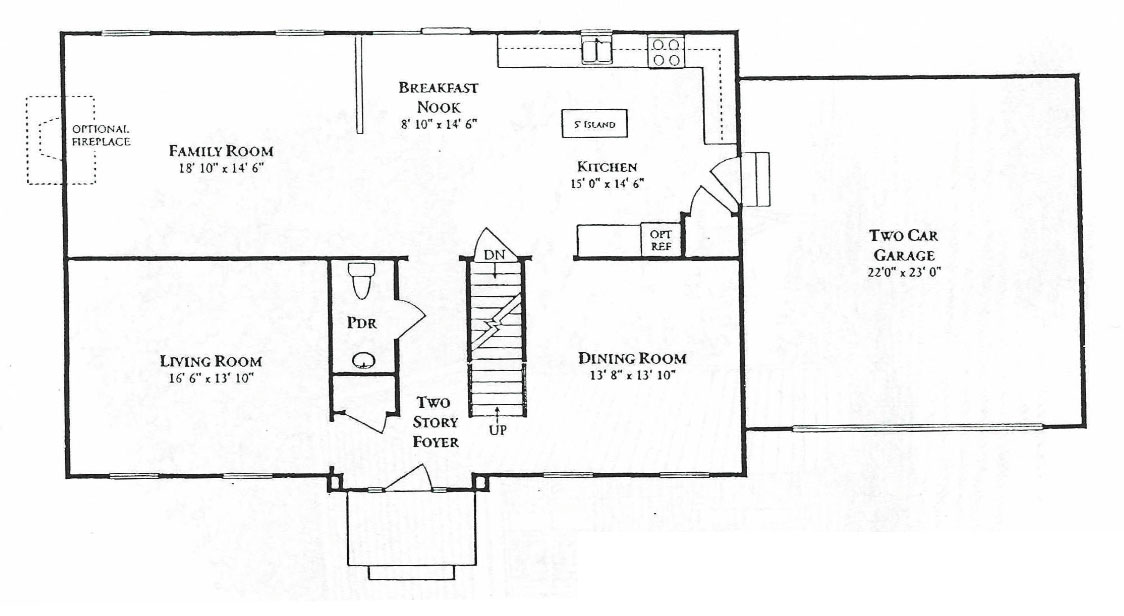
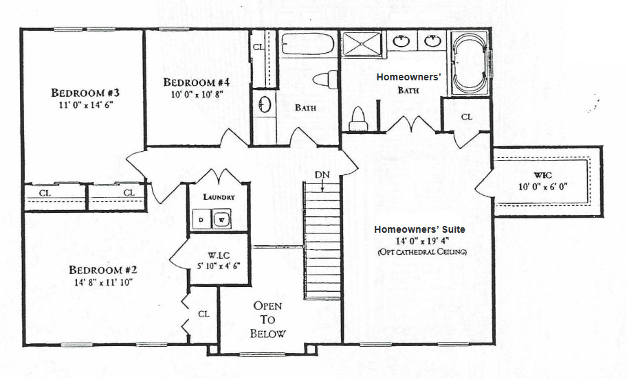
The Madison floor plans

First Floor Plan

Second Floor Plan

All the photograph for representational purposes only. May Show Options.

These plans and specifications may show optional items and they are subject to change without notice. We reserve the right to make product improvements and changes without prior notice. The complete offering terms are in an offering plan available from sponsor.

Details and dimensions are artistʼs concepts which are approximate and subject to change.